About 3201 Flagler Avenue 512
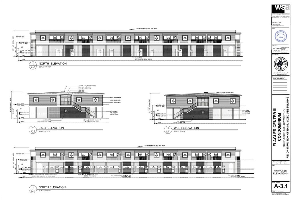
Introducing Flagler Center III, a reimagined mixed-use commercial property located in the Key West's New Town district. A strategic rebuild and redesigning of this site is in well on it's way led by Flagler Center III Condominium Association. The project is currently seeking approval for its major development plan, signaling a fresh start for 14 commercial units and the 14 residential units on this building. Location Highlights Situated on Flagler Avenue, a major east-west artery in Key West High visibility and traffic counts from both locals and tourists Proximity to Poinciana Elementary, Key West High School, and residential neighborhoods Easy access to U.S. Route 1 and Key West International AirportProperty Features (Proposed) Ground-floor retail and office suites Upper-level residential Modernized infrastructure and hurricane-resilient design Ample parking and ADA-compliant access Landscaped outdoor areas (pending approval)Investment Potential Ideal for medical offices, retail, professional services, or co-working. Strong rental demand in Key West's limited commercial inventoryPerfect opportunity to customize the space to your specific needs
Features of 3201 Flagler Avenue 512
| MLS® # | 616485 |
|---|---|
| Price | $400,000 |
| Bathrooms | 1.00 |
| Half Baths | 1 |
| Square Footage | 760 |
| Year Built | 2026 |
| Type | Commercial Sale |
| Sub-Type | Commercial |
| Status | Active |
Community Information
| Address | 3201 Flagler Avenue 512 |
|---|---|
| Area | 04 - Key West |
| Subdivision | Flagler Center PH 3 (3) |
| City | KEY WEST |
| County | Monroe |
| State | FL |
| Zip Code | 33040 |
Amenities
| Utilities | Buyer to Verify |
|---|---|
| View | No Waterview |
| Is Waterfront | No |
| Waterfront | None |
Interior
| Appliances | No Appliances |
|---|---|
| # of Stories | 1 |
Exterior
| Lot Description | None |
|---|---|
| Construction | CBS, Frame, Concrete |
Additional Information
| Date Listed | September 13th, 2025 |
|---|---|
| Days on Market | 122 |
| Zoning | RO - Residential/Office |
| Short Sale | No |
| RE / Bank Owned | No |
Listing Details
| Agent | Sandra Lee Swan |
|---|---|
| Office | Keller Williams Key West Compass Realty |
